´ó¹ú¹¤½³µÄÒ¡Àº
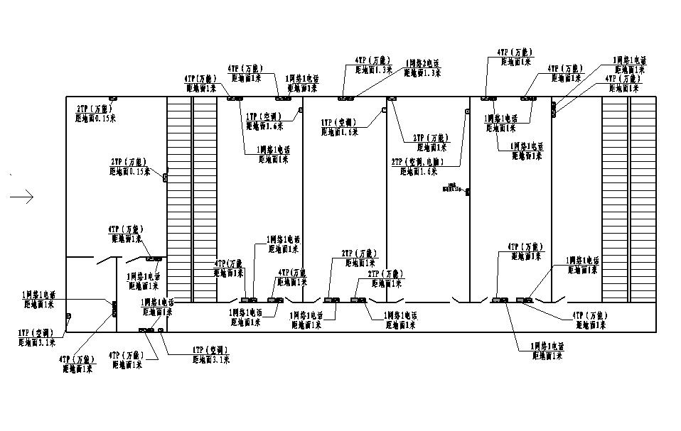
Ðн¡Â¥3Â¥ÍøÂç²¼ÏßµãλÖòο¼Í¼
¸½¼þÏÂÔØ£ºÐн¡Â¥3Â¥ÍøÂç²¼ÏßµãλÖòο¼Í¼.rar
Copyright 2024 Liuzhou Polytechnic University. All rights reserved. ¹ðICP±¸ 11003764 ºÅ ¹ð JS200701-131 ¹ð¹«Íø°²±¸ 45020302000070ºÅ
Óû§µÇ¼